Saltar al contenido principal

Ampliación Biblioteca Municipal Santa Rosa

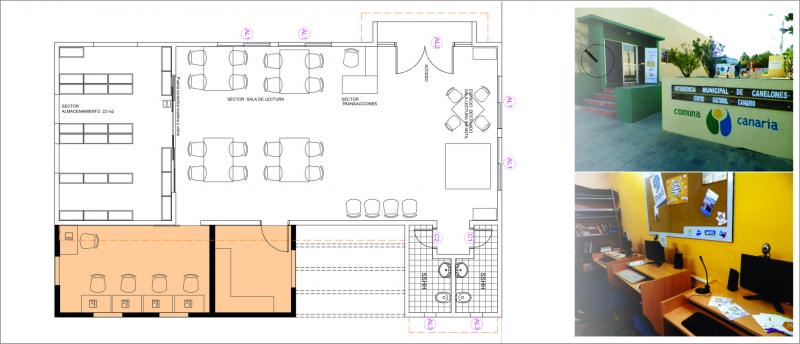
<p>Ampliación de la Biblioteca Pública Municipal de Santa Rosa en el espacio del Centro Cultural César Walter Lasa. La ampliación consta de un aula de informatica y una cocina.<br />
El proyecto se desarrolló a través del Programa + Local de OPP.</p>

  • Localidad Santa Rosa
  • Área a construir 26 m²
  • Período de ejecución Inicio - Año 2012 Final - Año 2013
  • Modalidad Administración
  • Estado de avance Finalizado (Obra culminada)
  • Actores Involucrados Comuna Canaria - Municipio de Santa Rosa - OPP
  • Texto descriptivo de la imagen